ARCO PLACE 504

6.3万円

管理 / 共益費 6,000円

兵庫県神戸市中央区二宮町1丁目6-1

東海道本線「三ノ宮」駅徒歩9分

阪急神戸本線「春日野道」駅徒歩10分

山陽新幹線「新神戸」駅徒歩14分

賃料
6.3万円
敷金(保証金)
0ヶ月(-)
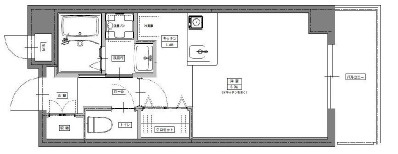
間取り
1K
向き
所在地
兵庫県神戸市中央区二宮町1丁目6-1
管理 / 共益費
6,000円
礼金
0ヶ月
専有面積
22.12㎡
築年月
1990年9月(築35年)
交通

東海道本線三ノ宮」駅 徒歩9分

阪急神戸本線春日野道」駅 徒歩10分

山陽新幹線新神戸」駅 徒歩14分

物件の特徴

  • バストイレ別

  • 室内洗濯機置場

  • TVモニタ付きインターホン

  • 独立洗面台

  • オートロック

  • ネット使用料無料

  • 家具・家電付き

セールスポイント

新生活を失敗せず、スタートさせたいならこちらの「ARCO PLACE」はいかがでしょうか。身だしなみを整えるときにもお使いいただける、独立洗面所がある物件です。こちらはマンションタイプになります。間取りが1Kでよく自炊をする方にも嬉しい物件です。CHINTAI ROOM 六甲本店 キュリアは、多種多様な賃貸情報を取り扱っております。神戸市中央区で住まい探しをする場合には、お気軽にお声かけ下さい。

ポイント

担当者のコメント

久保 優一

ARCO PLACEの詳しい情報。忙しい朝でも鏡を見ながらサッと身支度を整えられる独立洗面台を備えております。収納はクロゼット・シューズボックス・全居室収納などが備え付けられているので、衣類や日用品の収納に重宝します。直接会わずにインターホン越しに来訪者を確認できるので、トラブルの事前回避にも繋がります。お風呂に入っていて出られない時でも宅配ボックスがあるので出ることなく荷物を受け取ることができます。神戸市中央区の住まい探しを応援するCHINTAI ROOM 六甲本店 キュリア。多くの方に支持される地元の不動産会社として実績を重ねてきました、住まい探しのことなら是非当社にお任せ下さい。

基本情報

保証金
-
敷引 / 償却
- / -
敷金積み増し
-
間取り / 詳細
1K
向き
専有面積
22.12㎡
バルコニー
(テラス)面積
-
所在階 / 階建て
5階 / 5階建
建物構造
鉄筋コンクリート
築年月
1990年9月(築35年)
種別
賃貸マンション
保険会社 / 料金
有  / -
保証会社 / 料金
- / -
駐車場
近隣 18,000円 50m
現況
空家
入居可能時期
即時

設備条件

設備条件
  • 保証人不要 / 分割可 / 学生歓迎 / 法人可 / 外国人可 / 学生向け / 室内洗濯機置場 / フローリング / ベランダ / バルコニー / 24時間換気システム / 照明器具付き / 駐輪場 / バイク置場あり / 家具・家電付き / コンロ2口以上 / 冷蔵庫あり / システムキッチン / バス・トイレ別 / 温水洗浄便座 / 洗面台 / 洗髪洗面化粧台 / シャワー / 独立洗面台 / エアコン / シューズボックス / CS / BS / CATV / 光ファイバー / ネット使用料無料 / オートロック / TVモニタ付インターホン / 宅配ボックス / ディンプルキー

その他

契約期間
2年
賃貸区分
一般
更新料
-
更新事務手数料
-
総戸数
-
特優賃
-
取引態様
仲介
物件番号
75103291
管理コード
情報更新日
2026年02月05日
次回更新予定日
2026年02月19日
取扱会社
  • CHINTAI ROOM 六甲本店 株式会社キュリア
  • 兵庫県神戸市灘区森後町1丁目4-10 フレグランス六甲 1F
  • TEL:078-842-6550
  • 兵庫県知事 (2) 第11891号
  • (公)全国宅地建物取引業協会
備考
こだわりで選びたい方におすすめ。神戸市中央区エリアで住まいをお探しなら「ARCO PLACE」。宅配ボックスは通常カードキーや暗証番号を知っている方しか受け取ることができないので、荷物の盗難の心配がいりません。神戸市中央区へ移住を計画してるなら、CHINTAI ROOM 六甲本店 キュリアまでお問い合わせください。当社では、お客様の希望条件合わせたお部屋をご紹介させていただきます。

ARCO PLACEの他の部屋

  1. 2F

    1K (25.48㎡)

    6.1万円(0.79万円/坪)

  2. 1K (25.48㎡)

    6.3万円(0.82万円/坪)

  3. 1K (22.12㎡)

    6.3万円(0.94万円/坪)

  4. 403

    1K (25.48㎡)

    6.3万円(0.82万円/坪)

  5. 204

    1K (25.48㎡)

    6.1万円(0.79万円/坪)

周辺施設

  • 神若保育所の画像

    保育園

    神若保育所

    939m(12分)

  • 葺合保育所の画像

    保育園

    葺合保育所

    999m(13分)

近隣の物件

  1. Zonna神戸磯上通(ゾナ神戸磯上通)

    神戸市中央区磯上通4丁目

    1LDK (49.50㎡)

    16.9万円

  2. 晃ハイム

    神戸市中央区山本通4丁目

    1K (22.00㎡)

    3.9万円

  3. 福島マンション

    神戸市中央区吾妻通5丁目

    1DK (29.00㎡)

    4.4万円

  4. ダイドーメゾン三宮東

    神戸市中央区北本町通4丁目

    1R (19.25㎡)

    3.7万円

ARCO PLACE

ARCO PLACE

6.3万円

6,000円

1K(22.12㎡)

お気軽にお問い合わせください

LINEからお問い合わせ 無料お問い合わせ

CHINTAI ROOM 六甲本店 株式会社キュリア

078-842-6550

10:00~19:30

(休:年中無休(年末年始を除く))